Plants
Photographs
Closest Beaches
Location
Occupation Map
Price Table
Contacts
House Plants
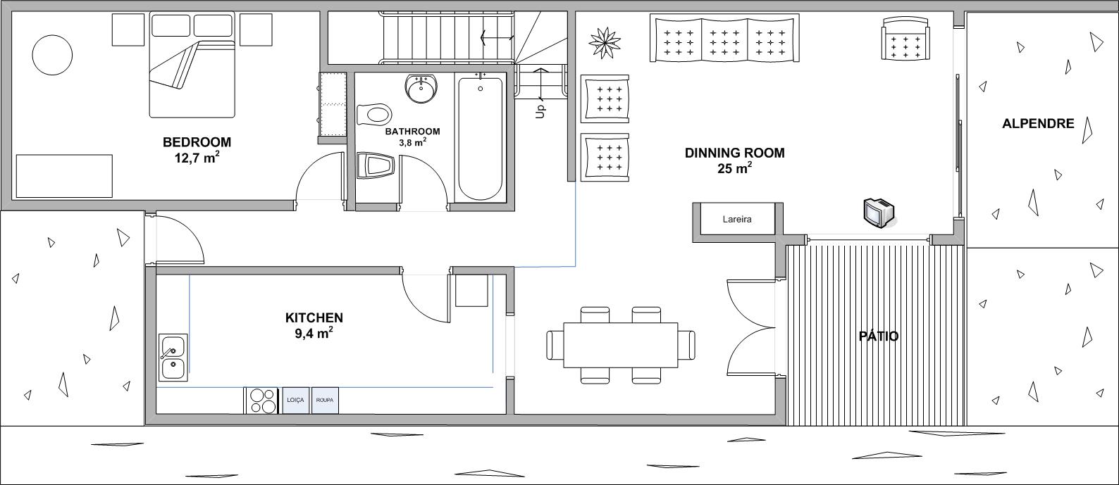
Lower floor
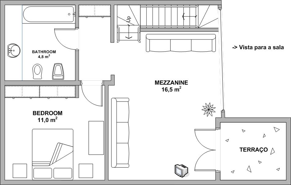
Upper floor