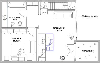
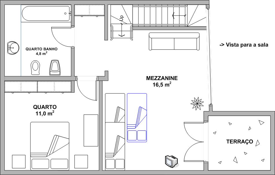
Plantas
Fotos
Nähste Strände
Lokalisation
Diagram Besetzung
Preistabelle
Kontakte
Plantas da casa
Groudfußboden
Erstes Stockwerk